广大市民朋友:
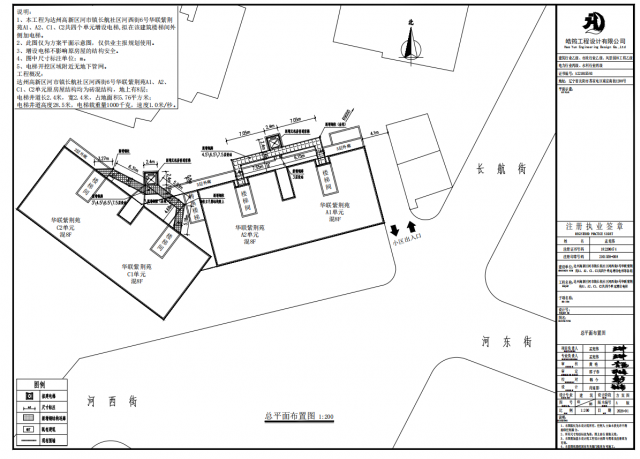
该图为达州高新区河市镇长航社区河西街6号华联紫荆苑A1、A2、C1、C2共四个单元增设电梯规划方案的总平面图,该项目位于河市镇长航社区河西街6号华联紫荆苑。该项目规划设计方案已通过达州高新区国土空间规划和自然资源管理委员会2026年第1次专委会审查。
为保证城乡规划的顺利实施,根据《中华人民共和国城乡规划法》,现将该项目设计方案的相关图纸予以公示(时间2026年2月2日—2月10日)。如有建议和意见请及时反馈给达州市自然资源和规划局高新区分局。
特此公示
联系电话:0818-3199019(办)
达州市自然资源和规划局高新区分局
2026年2月2日
--------------------------------------------------------------------------------------------------------------
附图:达州高新区河市镇长航社区河西街6号华联紫荆苑A1、A2、C1、C2共四个单元增设电梯规划方案的总平面图



